Vente 26200 MONTELIMAR - Entrepôt / Local industriel & Artisanal 480 m²
(26) Drôme, Rhone Alpes - Montélimar
Drome - 26200 MONTELIMAR - EMPLACEMENT N°1 - Laurent ZERBIB vous propose ce local d'activités ne uf de 480 m² modulable, stratégiquement implanté au sein d'un parc d'activités moderne à MONTELIMAR NORD. Possibilité d'activité industrielle ou artisanale. Livrés en état brut avec fluides en attente, ces espaces offrent une totale flexibilité d'aménagement permettant une adaptation optimale aux exigences spécifiques de votre activité. Bénéficiant d'un emplacement stratégique dans un environnement économique dynamique, ces locaux profitent d'une excellente desserte et d'un accès direct aux principaux axes routiers, garantissant ainsi une optimisation de vos flux logistiques et des déplacements de vos équipes. - Façade bardage double peau - Fluides en attente - Places de stationnement extérieures - Portes sectionnelles de 4,50 m - Structure métallique, livraison brute - Couverture bac acier avec étanchéité multicouches Dossier et photos sur demande avec LDC. Mandat 428116. Cession des murs : 489 720 Euros HT (honoraires 5% HT inclus charge acquéreur soit 462 000 Euros HT hors honoraires) Informations sur les risques auxquels ce bien est exposé sont disponibles sur le site Géorisques : www.georisques.gouv.fr Pour visiter et vous accompagner dans votre projet, contactez Laurent ZERBIB, au 06..107..995..27 ou, par courriel à l.zerbib@proprietes-privees.com. Selon l'article L.561.5 du Code Monétaire et Financier, pour l'organisation de la visite, la présentation d'une pièce d'identité vous sera demandée. Cette annonce a été rédigée sous la responsabilité éditoriale de Laurent ZERBIB agissant sous le statut d'agent commercial immatriculé au RSAC Nîmes 434 067 575 auprès de SAS PROPRIETES PRIVEES, au capital de 44 920 euros, ZAC LE CHÊNE FERRÉ - 44 ALLÉE DES CINQ CONTINENTS 44120 VERTOU ; SIRET 487 624 777 00040, RCS Nantes. Carte Professionnelle Transactions sur immeubles et fonds de commerce (T) et Gestion immobilière (G) n°CPI 4401 2016 000 010 388 délivrée par la CCI Nantes - Saint Nazaire. Compte séquestre n°30932508467 BPA SAINT-SEBASTIEN-SUR-LOIRE (44230). Garantie GALIAN-SMABTP - 89 rue de la Boétie, 75008 Paris - n°28137 J pour 2 000 000 euros pour T et 120 000 euros pour G. Assurance responsabilité civile professionnelle par GALIAN-SMABTP n° de police 28137.J (6.00 % honoraires TTC à la charge de l'acquéreur.) Laurent ZERBIB (EI) Agent Commercial - Numéro RSAC : Nîmes 434 067 575 - .
Vente 26200 MONTELIMAR - Entrepôt / Local Industriel & Artisanal Montélimar 4 200 m²
(26) Drôme, Rhone Alpes - Montélimar
Drome - 26200 MONTELIMAR - EMPLACEMENT N°1 - Nicolas JENNY vous propose ces locaux d'activités neufs de 4 210 m² modulables, stratégiquement implantés au sein d'un parc d'activités moderne à MONTELIMAR NORD. Possibilité d'activité industrielle ou artisanale. Livrés en état brut avec fluides en attente, ces espaces offrent une totale flexibilité d'aménagement permettant une adaptation optimale aux exigences spécifiques de votre activité. Bénéficiant d'un emplacement stratégique dans un environnement économique dynamique, ces locaux profitent d'une excellente desserte et d'un accès direct aux principaux axes routiers, garantissant ainsi une optimisation de vos flux logistiques et des déplacements de vos équipes. - Façade bardage double peau - Hauteur sous sablière 6,8 m - Fluides en attente - 90 places de stationnement extérieures - 4 portes sectionnelles de 4,50 m - Structure métallique, livraison brute - Couverture bac acier avec étanchéité multicouches Dossier et photos sur demande avec LDC. Mandat 427647. Cession des murs : 4 270 350 Euros HT (honoraires 5% HT inclus charge acquéreur soit 4 067 000 Euros HT hors honoraires) Nicolas JENNY 06..72..999..518, n.jenny@proprietes-privees.com. Selon l'article L.561.5 du Code Monétaire et Financier, pour l'organisation de la visite, la présentation d'une pièce d'identité vous sera demandée. Informations sur les risques auxquels ce bien est exposé sont disponibles sur le site Géorisques : www.georisques.gouv.fr Cette présente annonce a été rédigée sous la responsabilité éditoriale de Nicolas JENNY agissant en qualité de conseiller immobilier indépendant sous portage salarial auprès de SAS PROPRIETES PRIVEES, au capital de 44 920 euros, ZAC LE CHÊNE FERRÉ - 44 ALLÉE DES CINQ CONTINENTS 44120 VERTOU; SIRET 487 624 777 00040, RCS Nantes. Carte Professionnelle Transactions sur immeubles et fonds de commerce (T) et Gestion immobilière (G) n°CPI 4401 2016 000 010 388 délivrée par la CCI Nantes - Saint Nazaire. Compte séquestre n°30932508467 BPA SAINT-SEBASTIEN-SUR-LOIRE (44230). Garantie GALIAN-SMABTP - 89 rue de la Boétie, 75008 Paris - n°28137 J pour 2 000 000 euros pour T et 120 000 euros pour G. Assurance responsabilité civile professionnelle par GALIAN-SMABTP n° de police 28137.J (5.00 % honoraires TTC à la charge de l'acquéreur.) Nicolas JENNY (EI) Agent Commercial - Numéro RSAC : - .
Vente 26000 MONTELIMAR - Entrepôt / Local industriel & Artisanal 380 m²
(26) Drôme, Rhone Alpes - Montélimar
Drome - 26200 MONTELIMAR - EMPLACEMENT N°1 - Laurent ZERBIB vous propose ce local d'activités neuf de 380 m² modulable, stratégiquement implanté au sein d'un parc d'activités moderne à MONTELIMAR NORD. Possibilité d'activité industrielle ou artisanale. Livrés en état brut avec fluides en attente, ces espaces offrent une totale flexibilité d'aménagement permettant une adaptation optimale aux exigences spécifiques de votre activité. Bénéficiant d'un emplacement stratégique dans un environnement économique dynamique, ces locaux profitent d'une excellente desserte et d'un accès direct aux principaux axes routiers, garantissant ainsi une optimisation de vos flux logistiques et des déplacements de vos équipes. - Façade bardage double peau - Fluides en attente - Places de stationnement extérieures - Portes sectionnelles de 4,50 m - Structure métallique, livraison brute - Couverture bac acier avec étanchéité multicouches Dossier et photos sur demande avec LDC. Mandat 430594. Cession des murs : 374 000 Euros HT (honoraires 5% HT inclus charge acquéreur soit 396 440 Euros HT hors honoraires) Informations sur les risques auxquels ce bien est exposé sont disponibles sur le site Géorisques : www.georisques.gouv.fr Pour visiter et vous accompagner dans votre projet, contactez Laurent ZERBIB, au 06..107..995..27 ou, par courriel à l.zerbib@proprietes-privees.com. Selon l'article L.561.5 du Code Monétaire et Financier, pour l'organisation de la visite, la présentation d'une pièce d'identité vous sera demandée. Cette annonce a été rédigée sous la responsabilité éditoriale de Laurent ZERBIB agissant sous le statut d'agent commercial immatriculé au RSAC Nîmes 434 067 575 auprès de SAS PROPRIETES PRIVEES, au capital de 44 920 euros, ZAC LE CHÊNE FERRÉ - 44 ALLÉE DES CINQ CONTINENTS 44120 VERTOU ; SIRET 487 624 777 00040, RCS Nantes. Carte Professionnelle Transactions sur immeubles et fonds de commerce (T) et Gestion immobilière (G) n°CPI 4401 2016 000 010 388 délivrée par la CCI Nantes - Saint Nazaire. Compte séquestre n°30932508467 BPA SAINT-SEBASTIEN-SUR-LOIRE (44230). Garantie GALIAN-SMABTP - 89 rue de la Boétie, 75008 Paris - n°28137 J pour 2 000 000 euros pour T et 120 000 euros pour G. Assurance responsabilité civile professionnelle par GALIAN-SMABTP n° de police 28137.J (6.00 % honoraires TTC à la charge de l'acquéreur.) Laurent ZERBIB (EI) Agent Commercial - Numéro RSAC : Nîmes 434 067 575 - .
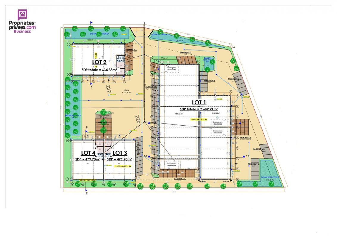
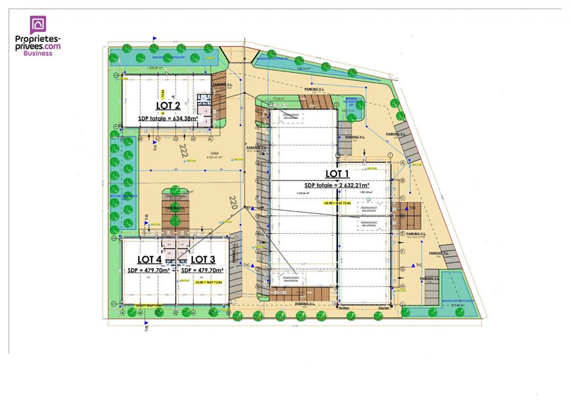
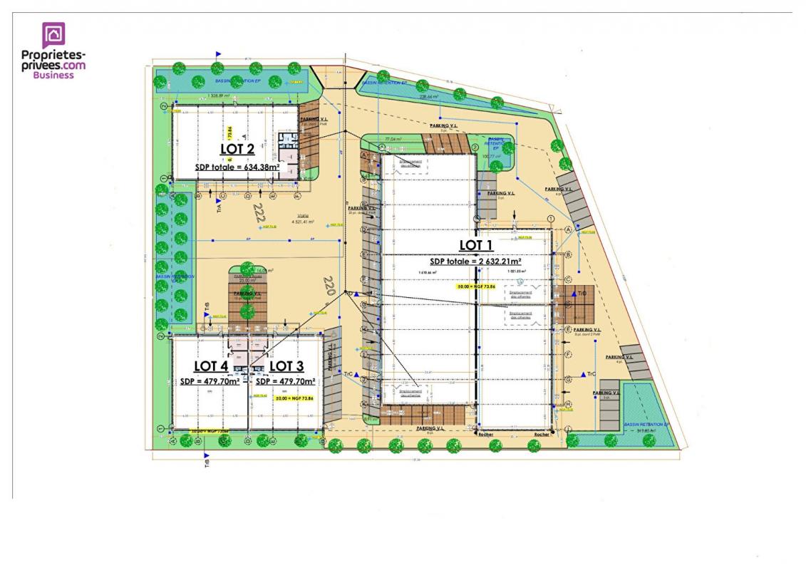
Vente MONTELIMAR - Entrepôt / Local industriel & Artisanal 635 m²
(26) Drôme, Rhone Alpes - Montélimar
Drome - 26200 MONTELIMAR - EMPLACEMENT N°1 - Laurent ZERBIB vous propose ce local d'activités neuf de 630 m² modulable, stratégiquement implanté au sein d'un parc d'activités moderne à MONTELIMAR NORD. Possibilité d'activité industrielle ou artisanale. Livrés en état brut avec fluides en attente, ces espaces offrent une totale flexibilité d'aménagement permettant une adaptation optimale aux exigences spécifiques de votre activité. Bénéficiant d'un emplacement stratégique dans un environnement économique dynamique, ces locaux profitent d'une excellente desserte et d'un accès direct aux principaux axes routiers, garantissant ainsi une optimisation de vos flux logistiques et des déplacements de vos équipes. - Façade bardage double peau - Fluides en attente - Places de stationnement extérieures - Portes sectionnelles de 4,50 m - Structure métallique, livraison brute - Couverture bac acier avec étanchéité multicouches Dossier et photos sur demande avec LDC. Mandat 430597 . Cession des murs : 614 000 Euros HT (honoraires 5% HT inclus charge acquéreur soit 644 700 Euros HT hors honoraires) Informations sur les risques auxquels ce bien est exposé sont disponibles sur le site Géorisques : www.georisques.gouv.fr Pour visiter et vous accompagner dans votre projet, contactez Laurent ZERBIB, au 06..107..995..27 ou, par courriel à l.zerbib@proprietes-privees.com. Selon l'article L.561.5 du Code Monétaire et Financier, pour l'organisation de la visite, la présentation d'une pièce d'identité vous sera demandée. Cette annonce a été rédigée sous la responsabilité éditoriale de Laurent ZERBIB agissant sous le statut d'agent commercial immatriculé au RSAC Nîmes 434 067 575 auprès de SAS PROPRIETES PRIVEES, au capital de 44 920 euros, ZAC LE CHÊNE FERRÉ - 44 ALLÉE DES CINQ CONTINENTS 44120 VERTOU ; SIRET 487 624 777 00040, RCS Nantes. Carte Professionnelle Transactions sur immeubles et fonds de commerce (T) et Gestion immobilière (G) n°CPI 4401 2016 000 010 388 délivrée par la CCI Nantes - Saint Nazaire. Compte séquestre n°30932508467 BPA SAINT-SEBASTIEN-SUR-LOIRE (44230). Garantie GALIAN-SMABTP - 89 rue de la Boétie, 75008 Paris - n°28137 J pour 2 000 000 euros pour T et 120 000 euros pour G. Assurance responsabilité civile professionnelle par GALIAN-SMABTP n° de police 28137.J (5.00 % honoraires TTC à la charge de l'acquéreur.) Laurent ZERBIB (EI) Agent Commercial - Numéro RSAC : Nîmes 434 067 575 - .
Vente Entrepôt / Local industriel & Artisanal Montélimar 635 m²
(26) Drôme, Rhone Alpes - Montélimar
Drome - 26200 MONTELIMAR - EMPLACEMENT N°1 - Laurent ZERBIB vous propose ce local d'activités neuf de 635 m² modulable, stratégiquement implanté au sein d'un parc d'activités moderne à MONTELIMAR NORD. Possibilité d'activité industrielle ou artisanale. Livrés en état brut avec fluides en attente, ces espaces offrent une totale flexibilité d'aménagement permettant une adaptation optimale aux exigences spécifiques de votre activité. Bénéficiant d'un emplacement stratégique dans un environnement économique dynamique, ces locaux profitent d'une excellente desserte et d'un accès direct aux principaux axes routiers, garantissant ainsi une optimisation de vos flux logistiques et des déplacements de vos équipes. - Façade bardage double peau - Fluides en attente - Places de stationnement extérieures - Portes sectionnelles de 4,50 m - Structure métallique, livraison brute - Couverture bac acier avec étanchéité multicouches Dossier et photos sur demande avec LDC. Mandat 430595. Cession des murs : 648 900 Euros HT (honoraires 5% HT inclus charge acquéreur soit 618 000 Euros HT hors honoraires) Informations sur les risques auxquels ce bien est exposé sont disponibles sur le site Géorisques : www.georisques.gouv.fr Pour visiter et vous accompagner dans votre projet, contactez Laurent ZERBIB, au 06..107..995..27 ou, par courriel à l.zerbib@proprietes-privees.com. Selon l'article L.561.5 du Code Monétaire et Financier, pour l'organisation de la visite, la présentation d'une pièce d'identité vous sera demandée. Cette annonce a été rédigée sous la responsabilité éditoriale de Laurent ZERBIB agissant sous le statut d'agent commercial immatriculé au RSAC Nîmes 434 067 575 auprès de SAS PROPRIETES PRIVEES, au capital de 44 920 euros, ZAC LE CHÊNE FERRÉ - 44 ALLÉE DES CINQ CONTINENTS 44120 VERTOU ; SIRET 487 624 777 00040, RCS Nantes. Carte Professionnelle Transactions sur immeubles et fonds de commerce (T) et Gestion immobilière (G) n°CPI 4401 2016 000 010 388 délivrée par la CCI Nantes - Saint Nazaire. Compte séquestre n°30932508467 BPA SAINT-SEBASTIEN-SUR-LOIRE (44230). Garantie GALIAN-SMABTP - 89 rue de la Boétie, 75008 Paris - n°28137 J pour 2 000 000 euros pour T et 120 000 euros pour G. Assurance responsabilité civile professionnelle par GALIAN-SMABTP n° de police 28137.J (5.00 % honoraires TTC à la charge de l'acquéreur.) Laurent ZERBIB (EI) Agent Commercial - Numéro RSAC : Nîmes 434 067 575 - .
Vente MONTELIMAR - Entrepôt / Local industriel & Artisanal 635 m²
(26) Drôme, Rhone Alpes - Montélimar
Drome - 26200 MONTELIMAR - EMPLACEMENT N°1 - Nicolas JENNY vous propose ce local d'activités neu f de 635 m² modulable, stratégiquement implanté au sein d'un parc d'activités moderne à MONTELIMAR NORD. Possibilité d'activité industrielle ou artisanale. Livrés en état brut avec fluides en attente, ces espaces offrent une totale flexibilité d'aménagement permettant une adaptation optimale aux exigences spécifiques de votre activité. Bénéficiant d'un emplacement stratégique dans un environnement économique dynamique, ces locaux profitent d'une excellente desserte et d'un accès direct aux principaux axes routiers, garantissant ainsi une optimisation de vos flux logistiques et des déplacements de vos équipes. - Façade bardage double peau - Fluides en attente - Places de stationnement extérieures - Portes sectionnelles de 4,50 m - Structure métallique, livraison brute - Couverture bac acier avec étanchéité multicouches Dossier et photos sur demande avec LDC. Mandat 428116. Cession des murs : 648 900 Euros HT (honoraires 5% HT inclus charge acquéreur soit 618 000 Euros HT hors honoraires) Nicolas JENNY 06..72..999..518, n.jenny@proprietes-privees.com. Selon l'article L.561.5 du Code Monétaire et Financier, pour l'organisation de la visite, la présentation d'une pièce d'identité vous sera demandée. Informations sur les risques auxquels ce bien est exposé sont disponibles sur le site Géorisques : www.georisques.gouv.fr Cette présente annonce a été rédigée sous la responsabilité éditoriale de Nicolas JENNY agissant en qualité de conseiller immobilier indépendant sous portage salarial auprès de SAS PROPRIETES PRIVEES, au capital de 44 920 euros, ZAC LE CHÊNE FERRÉ - 44 ALLÉE DES CINQ CONTINENTS 44120 VERTOU; SIRET 487 624 777 00040, RCS Nantes. Carte Professionnelle Transactions sur immeubles et fonds de commerce (T) et Gestion immobilière (G) n°CPI 4401 2016 000 010 388 délivrée par la CCI Nantes - Saint Nazaire. Compte séquestre n°30932508467 BPA SAINT-SEBASTIEN-SUR-LOIRE (44230). Garantie GALIAN-SMABTP - 89 rue de la Boétie, 75008 Paris - n°28137 J pour 2 000 000 euros pour T et 120 000 euros pour G. Assurance responsabilité civile professionnelle par GALIAN-SMABTP n° de police 28137.J (5.00 % honoraires TTC à la charge de l'acquéreur.) Nicolas JENNY (EI) Agent Commercial - Numéro RSAC : - .
Vente MONTELIMAR - Entrepôt / Local industriel & Artisanal 635 m²
(26) Drôme, Rhone Alpes - Montélimar
Drome - 26200 MONTELIMAR - EMPLACEMENT N°1 - Nicolas JENNY vous propose ce local d'activités neu f de 645 m² modulable, stratégiquement implanté au sein d'un parc d'activités moderne à MONTELIMAR NORD. Possibilité d'activité industrielle ou artisanale. Livrés en état brut avec fluides en attente, ces espaces offrent une totale flexibilité d'aménagement permettant une adaptation optimale aux exigences spécifiques de votre activité. Bénéficiant d'un emplacement stratégique dans un environnement économique dynamique, ces locaux profitent d'une excellente desserte et d'un accès direct aux principaux axes routiers, garantissant ainsi une optimisation de vos flux logistiques et des déplacements de vos équipes. - Façade bardage double peau - Fluides en attente - Places de stationnement extérieures - Portes sectionnelles de 4,50 m - Structure métallique, livraison brute - Couverture bac acier avec étanchéité multicouches Dossier et photos sur demande avec LDC. Mandat 429885. Cession des murs : 659 400 Euros HT (honoraires 5% HT inclus charge acquéreur soit 628 000 Euros HT hors honoraires) Nicolas JENNY 06..72..999..518, n.jenny@proprietes-privees.com. Selon l'article L.561.5 du Code Monétaire et Financier, pour l'organisation de la visite, la présentation d'une pièce d'identité vous sera demandée. Informations sur les risques auxquels ce bien est exposé sont disponibles sur le site Géorisques : www.georisques.gouv.fr Cette présente annonce a été rédigée sous la responsabilité éditoriale de Nicolas JENNY agissant en qualité de conseiller immobilier indépendant sous portage salarial auprès de SAS PROPRIETES PRIVEES, au capital de 44 920 euros, ZAC LE CHÊNE FERRÉ - 44 ALLÉE DES CINQ CONTINENTS 44120 VERTOU; SIRET 487 624 777 00040, RCS Nantes. Carte Professionnelle Transactions sur immeubles et fonds de commerce (T) et Gestion immobilière (G) n°CPI 4401 2016 000 010 388 délivrée par la CCI Nantes - Saint Nazaire. Compte séquestre n°30932508467 BPA SAINT-SEBASTIEN-SUR-LOIRE (44230). Garantie GALIAN-SMABTP - 89 rue de la Boétie, 75008 Paris - n°28137 J pour 2 000 000 euros pour T et 120 000 euros pour G. Assurance responsabilité civile professionnelle par GALIAN-SMABTP n° de police 28137.J (5.00 % honoraires TTC à la charge de l'acquéreur.) Nicolas JENNY (EI) Agent Commercial - Numéro RSAC : - .
Vente MONTELIMAR - Entrepôt / Local industriel & Artisanal 970 m²
(26) Drôme, Rhone Alpes - Montélimar
Drome - 26200 MONTELIMAR - EMPLACEMENT N°1 - Nicolas JENNY vous propose ce local d'activités neu f de 970 m² modulable, stratégiquement implanté au sein d'un parc d'activités moderne à MONTELIMAR NORD. Possibilité d'activité industrielle ou artisanale. Livrés en état brut avec fluides en attente, ces espaces offrent une totale flexibilité d'aménagement permettant une adaptation optimale aux exigences spécifiques de votre activité. Bénéficiant d'un emplacement stratégique dans un environnement économique dynamique, ces locaux profitent d'une excellente desserte et d'un accès direct aux principaux axes routiers, garantissant ainsi une optimisation de vos flux logistiques et des déplacements de vos équipes. - Façade bardage double peau - Fluides en attente - Places de stationnement extérieures - Portes sectionnelles de 4,50 m - Structure métallique, livraison brute - Couverture bac acier avec étanchéité multicouches Dossier et photos sur demande avec LDC. Mandat 429886. Cession des murs : 954 500 Euros HT (honoraires 5% HT inclus charge acquéreur soit 909 000 Euros HT hors honoraires). Nicolas JENNY 06..72..999..518, n.jenny@proprietes-privees.com. Selon l'article L.561.5 du Code Monétaire et Financier, pour l'organisation de la visite, la présentation d'une pièce d'identité vous sera demandée. Informations sur les risques auxquels ce bien est exposé sont disponibles sur le site Géorisques : www.georisques.gouv.fr Cette présente annonce a été rédigée sous la responsabilité éditoriale de Nicolas JENNY agissant en qualité de conseiller immobilier indépendant sous portage salarial auprès de SAS PROPRIETES PRIVEES, au capital de 44 920 euros, ZAC LE CHÊNE FERRÉ - 44 ALLÉE DES CINQ CONTINENTS 44120 VERTOU; SIRET 487 624 777 00040, RCS Nantes. Carte Professionnelle Transactions sur immeubles et fonds de commerce (T) et Gestion immobilière (G) n°CPI 4401 2016 000 010 388 délivrée par la CCI Nantes - Saint Nazaire. Compte séquestre n°30932508467 BPA SAINT-SEBASTIEN-SUR-LOIRE (44230). Garantie GALIAN-SMABTP - 89 rue de la Boétie, 75008 Paris - n°28137 J pour 2 000 000 euros pour T et 120 000 euros pour G. Assurance responsabilité civile professionnelle par GALIAN-SMABTP n° de police 28137.J (5.00 % honoraires TTC à la charge de l'acquéreur.) Nicolas JENNY (EI) Agent Commercial - Numéro RSAC : - .
Vente Local d'activités neuf à partir de 1000m²
(26) Drôme, Rhone Alpes - Montélimar
Local d'activités neuf à partir de 1 000 m², idéalement situé au cœur d'une zone d'activités dynamique et facile d'accès. Bâtiment bénéficiant de prestations idéales pour optimiser les activités industrielles ou de stockage : oHauteur sous plafond de 7,5 m pour un volume intérieur maximisé ; oPossibilité de créer un quai de chargement facilitant vos opérations d'expédition et de réception ; oPortes sectionnelles de grande dimension, adaptées à tous types de flux ; oStructure métallique moderne. Livré brut, hors d'eau et hors d'air, avec les réseaux en attente, ce local offre une totale liberté d'aménagement pour créer un espace parfaitement conforme à vos besoins. Vente en l'état futur d'achèvement (VEFA). Dossier complet sur demande. Possibilité de bâtir jusqu'à 2000m² et plus.. Les informations sur les risques auxquels ce bien est exposé sont disponibles sur le site www.georisques.gouv.fr.
Vente Local d'activités neuf à partir de 2000m²
(26) Drôme, Rhone Alpes - Montélimar
Local d'activités neuf à partir de 2 000 m², idéalement situé au cœur d'une zone d'activités dynamique et facile d'accès. Bâtiment bénéficiant de prestations idéales pour optimiser les activités industrielles ou de stockage : oHauteur sous plafond de 7,5 m pour un volume intérieur maximisé ; oPossibilité de créer un quai de chargement facilitant vos opérations d'expédition et de réception ; oPortes sectionnelles de grande dimension, adaptées à tous types de flux ; oStructure métallique moderne. Livré brut, hors d'eau et hors d'air, avec les réseaux en attente, ce local offre une totale liberté d'aménagement pour créer un espace parfaitement conforme à vos besoins. Vente en l'état futur d'achèvement (VEFA). Dossier complet sur demande.. Les informations sur les risques auxquels ce bien est exposé sont disponibles sur le site www.georisques.gouv.fr.
